川口市並木4丁目の一戸建ての過去掲載物件情報現況の確認はお気軽にお問い合わせください。
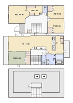
| 所在地 | 埼玉県川口市並木4丁目 | ||
|---|---|---|---|
| 交通 | |||
| 築年月(築年数) | 2021年 7月 ( 築4年 ) | 方位 | - |
| 種別/構造 | 一戸建て/木造 | 所在階/階建 | 1-2階/ 2階建 |
| 設備条件 |
|
||
【外観】
00件
最近見た物件
00件
検討リスト
株式会社サニーハウスTOP > (賃貸)路線・駅から探す > JR京浜東北線 > 西川口駅 > 川口市並木の物件
| 所在地 | 埼玉県川口市並木4丁目 | ||
|---|---|---|---|
| 交通 | |||
| 築年月(築年数) | 2021年 7月 ( 築4年 ) | 方位 | - |
| 種別/構造 | 一戸建て/木造 | 所在階/階建 | 1-2階/ 2階建 |
| 設備条件 |
|
||
【外観】
件
件
