川口市差間3丁目の一戸建ての過去掲載物件情報現況の確認はお気軽にお問い合わせください。
| 所在地 | 埼玉県川口市差間3丁目 | ||
|---|---|---|---|
| 交通 | |||
| 築年月(築年数) | 2021年 5月 ( 築5年 ) | 方位 | - |
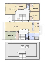
| 種別/構造 | 一戸建て/木造 | 所在階/階建 | 1-2階/ 2階建 |
| 設備条件 |
|
||
【外観】
00件
最近見た物件
00件
検討リスト
株式会社サニーハウスTOP > (賃貸)路線・駅から探す > JR武蔵野線 > 東川口駅 > 川口市差間の物件
| 所在地 | 埼玉県川口市差間3丁目 | ||
|---|---|---|---|
| 交通 | |||
| 築年月(築年数) | 2021年 5月 ( 築5年 ) | 方位 | - |
| 種別/構造 | 一戸建て/木造 | 所在階/階建 | 1-2階/ 2階建 |
| 設備条件 |
|
||
【外観】
件
件
